1768 Valentine Place S
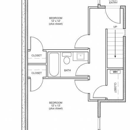
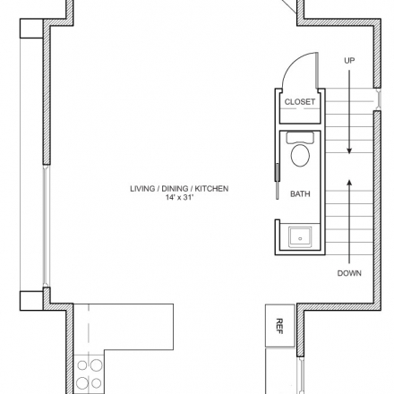
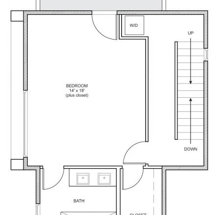
Valentine Communities homes seamlessly blend modern technology with nature, featuring eco-friendly materials and clean organic designs. Each home is its own secluded oasis, with a spacious rooftop deck perfect for entertaining, and expansive windows throughout to allow for plenty of natural light. The ultra-modern kitchens feature gorgeous tile backsplashes, Quartz slab countertops, ample Canyon Creek cabinets, and high-end stainless steel appliances. Bathrooms feature Grohe faucets, deep soaking tubs, and hybrid heated Italian tile floors. All homes at Valentine Communities also boast beautiful bamboo flooring and a sleek gas fireplace ideal for cold winter nights. Perfect timing to enjoy the hot summer with the ductless mini-split AC/Heating system in each room.
Valentine Communities have a 4-Star Built Green certification, and offer immediate and long term savings through careful design, efficient building techniques, and selection of long-lasting and low-maintenance building materials














